Pasar al contenido principal
Proyecto Nº 244 - Edificio Parque Lussich
Dirección
Calle Pública S/N 1 casi Avenida Antonio Lussich
Departamento
Maldonado
Localidad/Barrio
Maldonado
Contacto
  • Contacto: Gustavo Cotto
  • E-mail: gustavocotto@gmail.com
  • Celular: 093 749 090
  • Contacto: Arq. Alberto Reyes
  • E-mail: arqareyes@yahoo.com
  • Celular: 099 692 112
Estado
Sin unidades a la venta
Share

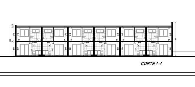
Se trata de un conjunto habitacional conformado por 6 unidades de vivienda de interés social dúplex, todas de 2 dormitorios. En planta baja, constan de estar-comedor, cocina integrada y patio con parrillero.

En planta alta, se implantan los dormitorios y el baño. El sistema constructivo es tradicional, con losas en hormigón armado, y muros de mampostería.

Unidad Dormitorios Viviendas Balños  Área Habitable (m2)  Área Construida (m2)
001 2 1 1 62 69
002 - 006 2 5 1 57 63
Total   6   347 384
Todas las unidades han sido comercializadas. 
Plano
Plano
Galería de imagenes
Plano por tipología