Pasar al contenido principal
Proyecto Nº 027
Dirección
Magallanes Nº 1173 entre Canelones y Maldonado.
Departamento
Montevideo
Localidad/Barrio
Palermo
Estado
Sin unidades a la venta
Share

El proyecto consta con planta de subsuelo a medio nivel de la vereda existente, planta baja, y 10 plantas altas (8 de estos niveles con retiro de 4 mts. del plano de fachada, y el nivel 10 con gálibo).

En subsuelo, se ubicarán 8 lugares de garaje.

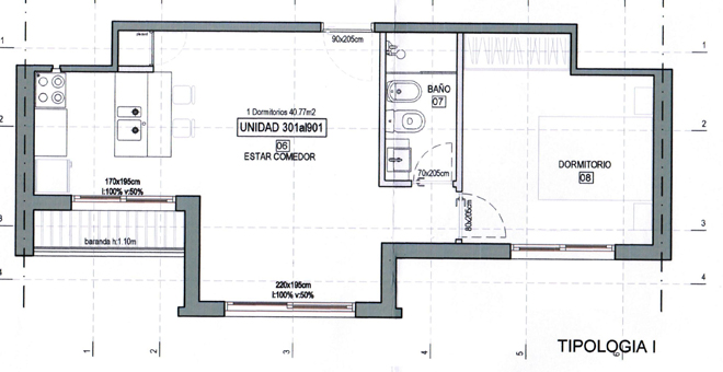
En planta baja se prevén otros 8 lugares de garaje, hall de acceso y un local con destino para oficina. En el primer nivel se implantarán 4 unidades de vivienda (dos de 2D al fondo y dos de 1D al frente); en las plantas del nivel 2 al 9, se proyectan 3 unidades de vivienda (dos de 2D al fondo y uno de 1D al frente), en el nivel 10 se proyectan dos unidades de vivienda (las dos de 2D al fondo), y una amplia terraza de uso colectivo; y a nivel de azotea se proyecta la ubicación del salón de usos múltiples con un parrillero a cielo abierto con pérgola de madera.

El sistema constructivo es tradicional, con muros de mampostería y estructura de hormigón armado.

Tipología Vivienda Baños Área Habitable (m2)
1D 3 1 35
1D 7 1 36
2D 20 1 48
Total 30   1317

 

Todas las unidades han sido comercializadas.
Plano
Plano
Galería de imagenes
Plano por tipología