Pasar al contenido principal
Proyecto Nº 041
Dirección
Martín C. Martínez Nº 2668 esquina Vilardebó y Guadalupe
Departamento
Montevideo
Localidad/Barrio
La Figurita
Contacto
  • Empresa: HANS SZLAIN SABRINA LAURA Y SULMAN SCHAJRIS HUGO NORBERTO
  • Gabriel Ugarte
Estado
Sin unidades a la venta
Share

Se trata de un reciclaje y ampliación de una vivienda, generando 7 nuevas unidades de vivienda VIS.

A las viviendas se accede mediante un corredor semi-techado contra una de las medianeras, sobre el que se ubican hacia uno de los lados tres patios que permiten la higiene y habitabilidad de las viviendas que conforman el conjunto proyectado.

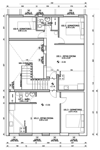
En la vivienda original, se interviene generando mediante reforma y reciclaje, 6 unidades de vivienda (4 de 1d y 2 de 2D). Sobre la azotea de la unidad 004 y parte de la unidad 003, se realiza la ampliación de una vivienda de 1D, a la que se accede por medio de una escalera ubicada en el patio trasero.

A las unidades 101 y 102 se accede mediante una escalera externa ubicada en el primer patio.

Al fondo, en el último patio, se ubica un parrillero a cielo abierto, de uso común de todas las unidades.

El sistema constructivo es tradicional, con muros portantes en mampostería y cubiertas livianas en chapa galvanizada con cielorraso de yeso cartón.

Unidad Dormitorios Vivienda Baños Área Habitable (m2)
001 1 1 1 37
002 1 1 1 43
003 2 1 1 56
004 1 1 1 40
101 1 1 1 42
102 2 1 1 47
103 1 1 1 37
Total   7   302

 

Todas las unidades han sido comercializadas.
Plano
Plano
Galería de imagenes
Plano por tipología