Pasar al contenido principal
Proyecto Nº 082
Dirección
Gaboto Nº 1054/56 esquina Isla de Flores.
Departamento
Montevideo
Localidad/Barrio
Palermo
Contacto
  • Empresa: CALVENTO FRUMENTO JUAN GABRIEL
  • Contacto: Juan Gabriel Calvento
  • Teléfono: 2314 2191
Estado
Sin unidades a la venta
Share

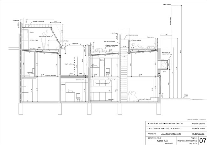
Se trata de un reciclaje de dos viviendas que datan del año 1928 aproximadamente, construidas en régimen común.

Se obtienen 4 nuevas unidades de vivienda de interés social triplex en régimen de propiedad horizontal (2 de 1 dormitorio y 2 de 2 dormitorios).

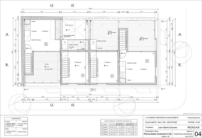
La intervención prevé el mantenimiento del volumen original, incluso parte del techo liviano existente que se consolida, entrepisando la altura existente para obtener dos plantas y generando una segunda planta sobre el nivel de cubierta a partir de la nivelación del suelo con una estructura de acero y entarimado de madera.

En planta baja se ubican el estar, y la cocina -comedor, en tanto en la unidad 002 se ubica también en planta baja el baño. En la planta intermedia, se ubican los dormitorios y baño, salvo la unidad 002.

El sistema constructivo es tradicional, con cerramientos horizontales en placas de isopanel autoportant y muros de mampostería hueca.

Unidad Dormitorios Vivienda Baños Área Habitable (m2)
001 2 1 1 67
002 1 1 1 42
003 1 1 1 49
004 2 1 1 66
Total   4   224

 

Todas las unidades han sido comercializadas.
Plano
Plano
Galería de imagenes
Plano por tipología